برج آترا (کوهک، منطقه ۲۲) — بررسی جامع فنی
۱ — معرفی کلی و مشخصات پایه (بارگذاری حقایق)
- مکان: بلوار کوهک، منطقهٔ ۲۲ تهران (مجاورت پارک جنگلی و دریاچهٔ چیتگر).
- نوع پروژه: تکبلوک شخصیساز (سازندهٔ شناختهشده در منطقه).
- تعداد طبقات: ۱۷ طبقه (۳ طبقه منفی/پارکینگ، ۱ طبقه لابی و مشاعات مرتفع، ۱۳ طبقه مسکونی).
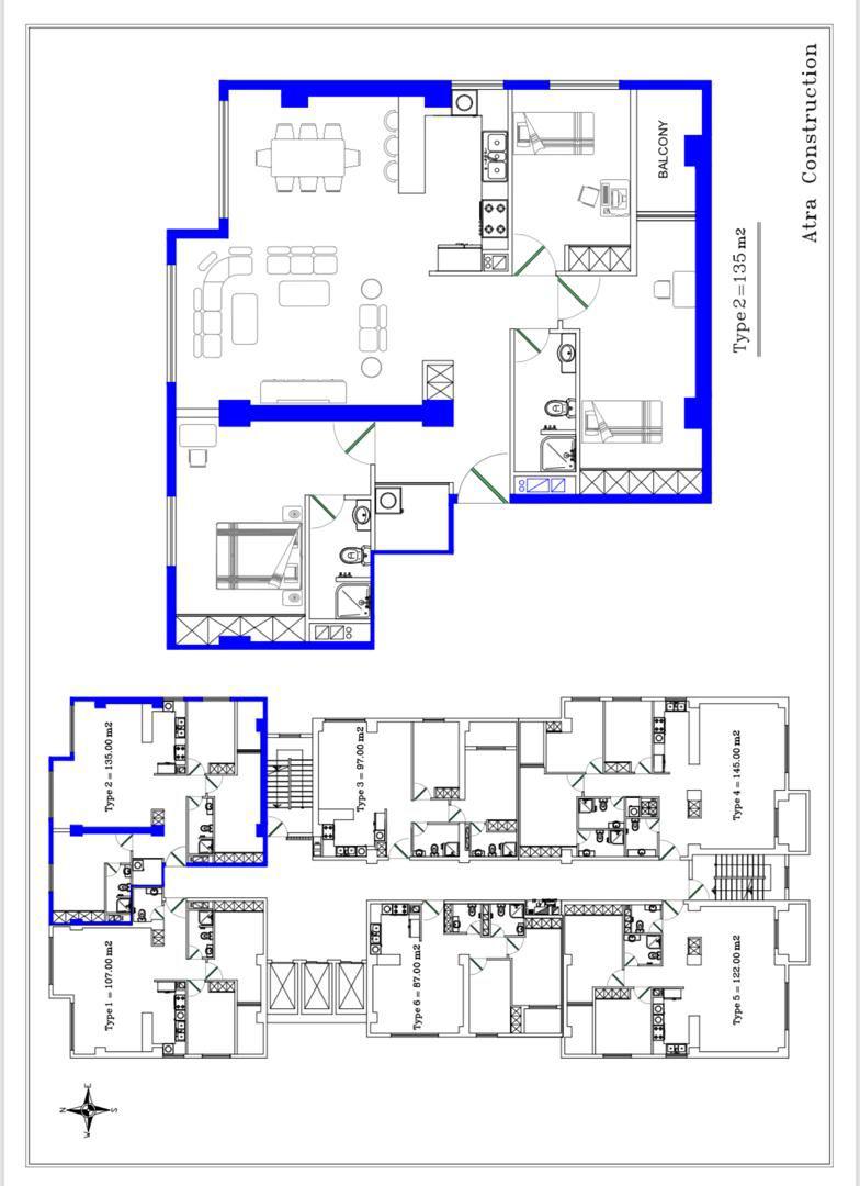
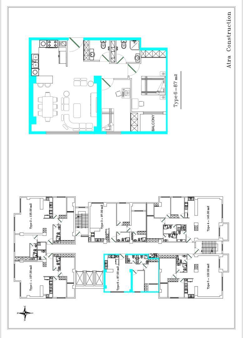
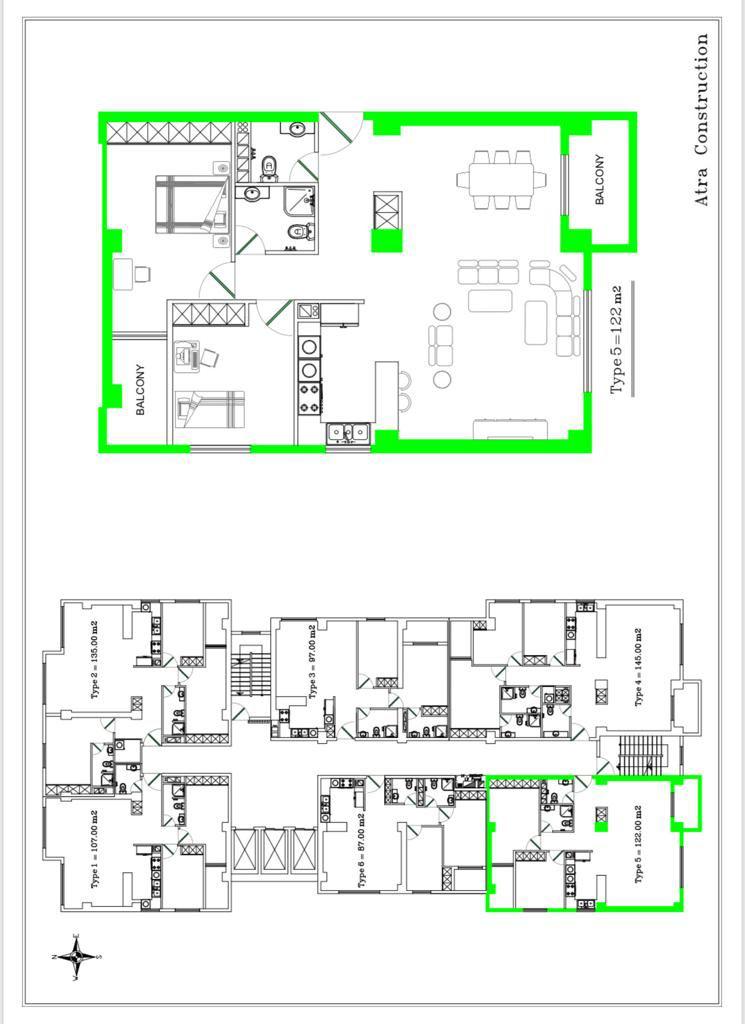
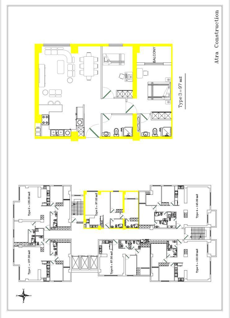
- تعداد واحدها: مجموعاً ۸۷ واحد — هر طبقه ۶ واحد.
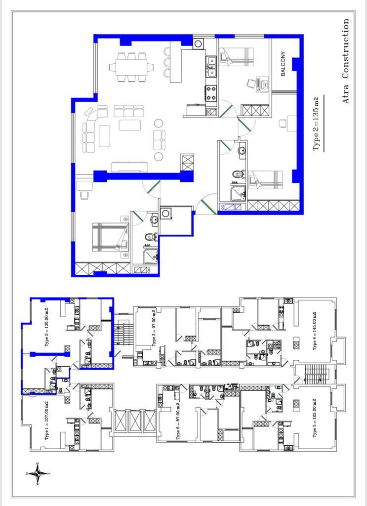
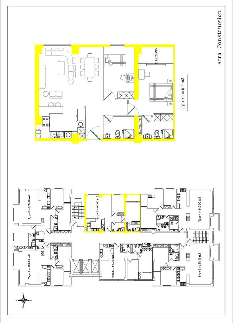
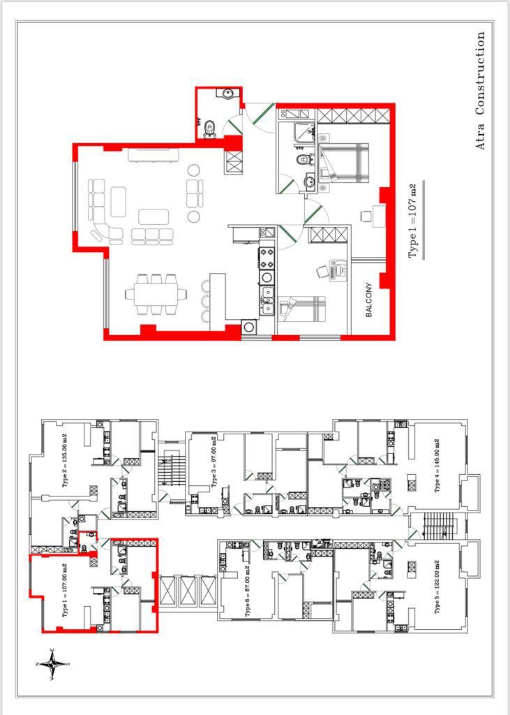
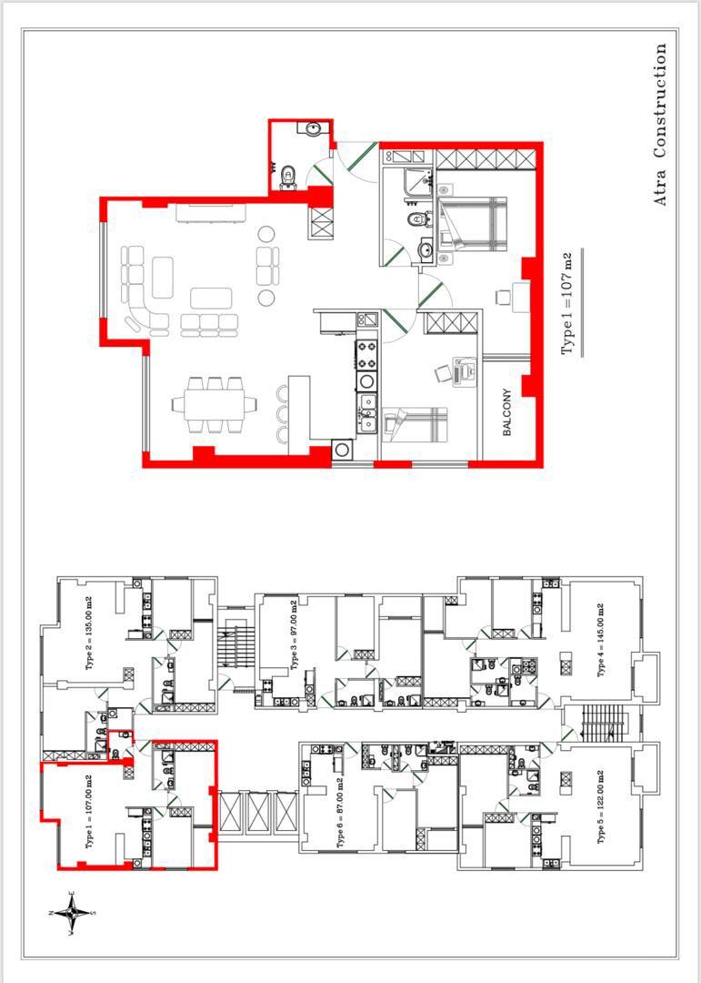
- متراژها: واحدها در بازهٔ ۸۷ تا ۱۴۵ متر مربع (تیپهای ۸۷، ۹۷، ۱۰۷، ۱۲۲، ۱۳۵ و ۱۴۵).
- سازه: اسکلت بتنی با دیوارهای برشی (افزایش مقاومت لرزهای).
- وضعیت پروژه: نوساز / در مراحل نهایی تکمیل و برخی واحدها تحویل یا در سکونت.
این بخشِ مشخصات پایه بر مبنای اطلاعاتی است که در چندین آگهی و معرفی پروژهٔ منطقه ۲۲ تکرار شدهاند؛ اگر میخواهید منبعِ رسمی (بروشور سازنده یا دفتر فروش) را در انتهای صفحه canonical قرار دهیم بفرستید تا به متن ارجاع دهیم.
۲ — بازنویسی توصیف پروژه (نسخهٔ آمادهٔ انتشار)
برج آترا، یک پروژهٔ تکبلوک و لوکس در بلوار کوهک منطقهٔ ۲۲ است که با هدف ایجاد فضایی خانوادگی و هتلینگ برای ساکنان طراحی شده است. این برج شامل ۱۷ طبقه است که سه طبقهٔ منفی به پارکینگ و انباری اختصاص یافتهاند، طبقهٔ همکف و لابی با ارتفاع سقف مرتفع و طراحی مجلل ساخته شده و ۱۳ طبقهٔ بالاتر به واحدهای مسکونی اختصاص دارد. معماری نما تلفیقی از سنگ و شیشه با رویکردی نئوکلاسیک-مدرن است که ضمن ایجاد حضور شهری شاخص، نگهداری قابل قبولی را نیز در شرایط شهری ممکن میسازد. پلانهای واحدها باز و بدون پرتی طراحی شدهاند و متراژها از واحدهای ۸۷ متر دوخوابه تا ۱۴۵ متر سهخوابه را دربرمیگیرند؛ این تیپبندی انتخابهای متنوعی برای خانوادههای جوان تا خانوادههای دو یا سهنفرهٔ کامل فراهم میکند. امکانات ساختمان در سطح هتل و مجموعهٔ رفاهی شامل استخر سرپوشیده، سالن ورزشی تجهیزشده، سونا و جکوزی، سالن اجتماعات، کافیشاپ، فضای بازی کودکان و چندخط آسانسور پرسرعت است که تجربهٔ سکونت را به فراتر از یک بلوک مسکونی کلاسیک میبرد.
۳ — تحلیل فنی (سازه، تأسیسات، ایمنی)
سازه و مقاومت لرزهای
- اسکلت بتنی با دیوارهای برشی: این روش در تهران رایج و مناسب برای افزایش سختی جانبی و مقاومت در برابر زلزله است؛ دیوارهای برشی به توزیع نیروی زلزله در هستهٔ سازه کمک میکنند و در صورتی که جزئیات اجرایی (میلگردگذاری، بتن با عیار مناسب، وصلهها و آرماتوربندی) طبق استاندارد انجام شده باشند، عملکرد مناسبی خواهند داشت.
تأسیسات سرمایش/گرمایش و تهویه
- اشاره به سیستم چیلر مرکزی یا سیستم سرمایش/گرمایش مرکزی در معرفیها دیده شده؛ سیستمهای مرکزی اگر بهدرستی طراحی شوند مزیت یکپارچگی و نگهداری آسانتری نسبت به داکت اسپلیتهای مستقل دارند اما هزینهٔ شارژ و تعمیرات مشترک بالاتری دارند که باید در بررسی اقتصادی لحاظ شود.
عایقها و ایمنی
- گزارشها از وجود عایق صوتی و عایق حرارتی در دیوارهای داخلی و استفاده از متریال با کیفیت در نما حکایت دارند. سیستم اطفای حریق خودکار و دوربینهای مداربسته بهعنوان امکانات ایمنی ذکر شدهاند؛ اما کیفیت واقعی این سیستمها وابسته به برند تجهیزات، نصب استاندارد و نگهداری مداوم است (که معمولاً در تحویل نهایی مشخص میشود).
۴ — کیفیت مصالح و سبک معماری
- نما: نئوکلاسیک با سنگ و جزئیات رومی-کلاسیک، باعث هویت بصری برج شده و در عین حال هزینهٔ نگهداری نما (تمیزکاری سنگ، بندکشی و محافظت) را بالا میبرد.
- داخلی: لابیهای بلند و طراحی هتلینگ؛ استفاده از متریال مرغوب در لابی میتواند تجربهٔ ساکنان و ارزش بازاری واحدها را ارتقاء دهد، اما باید قرارداد نگهداری و دیتیلهای نورپردازی و تهویهٔ لابی هم مشخص باشند تا رطوبت و آسیبهای احتمالی کنترل شود.
۵ — امکانات رفاهی و خدمات (تحلیل عملکردی)
امکاناتی که معمولاً در معرفیها ذکر شدهاند: استخر سرپوشیده، سونا و جکوزی، سالن ورزشی، کافیشاپ، سالن اجتماعات، فضای بازی کودکان، چند لاین آسانسور ۱۵ نفره، شوتینگ زباله، نگهبانی ۲۴ ساعته و فضای سبز یا روفگاردن. این امکانات میتوانند مزیت رقابتی برج باشند اما نکات کلیدی برای ارزیابی عملکرد واقعی عبارتاند از:
- ظرفیت و مدیریت: استخر و کلوپ با مدیریت ضعیف باعث شلوغی و کاهش کیفیت تجربه میشود؛ قرارداد مدیریت و سیاستهای استفاده (ساعات رزرو، حق استفادهٔ میهمان، هزینهٔ ورودی) باید شفاف باشد.
- هزینهٔ نگهداری: هر یک از این امکانات هزینهٔ مستقیم (مصرف انرژی، تعمیرات) و غیرمستقیم (نیروی انسانی، مواد مصرفی) دارد؛ لازم است قبل از خرید نمونهٔ قرارداد شارژ و بودجهٔ سالیانه را مشاهده کنید.
- امنیت و نگهداری فنی: آسانسورها، چیلر مرکزی و سیستم اطفای حریق نیازمند سرویس دورهای با پیمانکار معتبر هستند؛ نبودن برنامهٔ سرویس میتواند خطرات ایمنی و هزینهٔ سنگین بعدی ایجاد کند.
۶ — نقاط قوت برج آترا (جمعبندی مزایا)
- مکان و ویو: نزدیکی به دریاچهٔ چیتگر و پارک جنگلی، دسترسی به فضای سبز و کیفیت دید خوب واحدهای جنوبی.
- پلانهای متنوع و مناسب خانواده: تیپهای ۲ و ۳ خوابه در بازهٔ متری مناسب که برای طیف خریداران جذاب است.
- کیفیت ساخت و نما: استفاده از نما سنگی و جزییات لوکس در لابی که برای دستهٔ خریداران لاکچری جذابیت دارد.
- امکانات هتلینگ: مجموعهٔ امکانات رفاهی کامل که زندگی روزمره را آسانتر و جذابتر میکند.
- پتانسیل تحولی منطقه: منطقهٔ ۲۲ در حال توسعه است و پروژههای زیرساختی (مرکز خرید، خطوط حملونقل) میتوانند ارزش ملک را افزایش دهند.
۷ — معایب و ریسکها (آنچه باید بدانید)
- هزینهٔ خرید و نگهداری بالا: ساختمانهای هتلینگمانند شارژ ماهانهٔ بالاتری دارند؛ خریدار باید پیش از خرید بودجهٔ ماهیانه و سالیانه را بررسی کند.
- تراکم واحدها در هر طبقه (۶ واحد): اگرچه عدد بالایی نیست اما در ساعات اوج ممکن است آسانسورها شلوغ شوند—بررسی تعداد و ظرفیت آسانسورها و زمان اوج استفاده مهم است.
- وابستگی به خودرو و محدودیت حملونقل عمومی: کوهک و حواشی دریاچه در حال توسعه است و مترو/حملونقل عمومی کامل نیست؛ در نتیجه ساکنان بیشتر به خودرو شخصی وابستهاند.
- احتمال تاخیر یا اختلاف در تحویل: هر پروژهٔ شخصیساز ممکن است با اختلافاتی در تحویل نهایی مواجه شود؛ بهتر است مدارک، زمانبندی و شرایط قرارداد را بررسی کنید.
- سنسورهای محیطی و بوی دریاچه / باد: برخی ساکنان منطقه گزارشهایی از مسائل محیطی (بادهای شدید، گاهی بوی دریاچه در شرایط خاص) دادهاند — ارزش بررسی بازدید میدانی در ساعات متفاوت روز را دارد.
۸ — مقایسهٔ سریع با برجهای همرده در کوهک / دریاچهٔ چیتگر
برای تصمیمگیری عقلانی، مقایسهٔ برج آترا با ۲–۳ پروژهٔ همرده ضروری است. معیارها: قیمتِ پیشنهادی نسبت به متریال، کیفیت نما، امکانات هتلینگ، سن تحویل، نزدیکی به مراکز و مترو، و حجم واحدها.
- پروژههای ۲۱–۲۵ طبقه بزرگتر (تعاونیها یا برجهای ارتش): معمولاً واحدهای متنوعتری دارند اما جمعیت بیشتر و شلوغی بیشتر؛ هزینههای شارژ ممکن است کمتر در هر متر (به خاطر اقتصاد مقیاس) ولی کیفیت خدمات متمرکز ممکن است پایینتر باشد.
- پروژههای شخصیساز مانند آترا: مزیتِ سفارشیسازی، متریال بالاتر، توجه بیشتر به جزئیات؛ اما قیمت اولیه و شارژ بالاتر و ریسک تمرکز سرمایه روی یک سازنده وجود دارد.
نکتهٔ عملی: اگر سرمایهگذار هستید و دنبال بازده کوتاهمدت هستید، برجهای با تحویل سریع و حجم واحد بالا (که بازار اجاره دارد) ممکن است نقدشوندگی بیشتری داشته باشند. اگر خریدار مصرفی و دنبال کیفیت زندگی هستید، پروژهای مثل آترا با امکانات بیشتر برای شما مناسبتر خواهد بود.
۹ — تحلیل اقتصادی و برآورد هزینههای نگهداری (نمونهٔ محاسباتی)
این بخش یک مدل نمونه است برای درک هزینهها — اعداد واقعی را از دفتر مدیریت ساختمان یا قرارداد پیش از خرید بگیرید.
فرض کنیم:
- واحد ۱۰۵ متری دارید.
- شارژ پایهٔ خدمات (محلی): فرض متغیر؛ اما برای یک برج هتلینگ در منطقهٔ ۲۲ میتوان محدودهٔ تقریبی زیر را در نظر گرفت (اعداد نمونه، واحد تومان/ماه):
- نگهداری و برق مشترک (راهروها، لابی، آسانسورها): ۵۰,۰۰۰ تومان/متر
- هزینهٔ اپراتوری استخر و سونا (تقسیم شده بر واحدها): ۲۰,۰۰۰ تومان/متر
- نگهبانی و حفاظت: ۱۵,۰۰۰ تومان/متر
- بودجهٔ تعمیرات و نوسازی (پسانداز): ۱۰,۰۰۰ تومان/متر
- آبگرمکن مرکزی، گاز، کل سرویسها: ۵,۰۰۰ تومان/متر
جمع نمونه: ۱۰۰,۰۰۰ تومان در هر متر مربع در ماه → برای واحد ۱۰۵ متری: ۱۰۵ × ۱۰۰,۰۰۰ = 10,500,000 تومان/ماه (نمونه).
این عدد برای برجهای معمولی بیش از حد است؛ اما برای برجهای لوکس با امکانات هتلینگ (استخر و چیلر مرکزی) منطقی است که شارژ ماهانه بیشتر از میانگین منطقه باشد. پیشنهاد: همیشه نمونهٔ قرارداد شارژ و صورتحسابهای قبلی را از دفتر مدیریت بخواهید.
۱۰ — نکات حقوقی و اسنادی قبل از خرید
- استعلام سند: آیا واحد سند تکبرگ (ششدانگ) یا قولنامهای است؟ اسناد رسمی را در دفتر اسناد بررسی کنید.
- بررسی پایانکار و گواهیهای ایمنی: قبل از پرداخت ماندهها، از موجود بودن پایانکار، گواهیهای آتشنشانی و استاندارد آسانسورها اطمینان حاصل کنید.
- بررسی قرارداد نگهداری و شرح خدمات: این قرارداد تعیینکنندهٔ هزینههای شارژ آینده است؛ بندهای مربوط به افزایش هزینه، نحوهٔ محاسبه و تعهدات مدیریت را بخوانید.
- گزارش دفاتر تسهیم هزینه و صندوق تعمیرات: ببینید صندوق تعمیرات چقدر است و آیا بدهیای روی ساختمان وجود دارد.
- ضمانتهای سازنده: بندهای مربوط به گارانتی سازه، تأسیسات و رفع نقص را ببینید و مدت زمان و شرایط آن را مکتوب بگیرید.
۱۱ — راهنمای عملی برای بازدید میدانی (Checklist)
- بازدید در ساعات مختلف (صبح، ظهر، عصر) برای بررسی نویز، ترافیک و بو.
- بازدید از پارکینگ: ظرفیت، عرض رمپ، ارتفاع پارکینگ.
- روشن کردن آسانسورها و سنج دقیق زمان انتظار در ساعات اوج.
- تست کیفیت آب، فشار آب و بررسی سیستم تهویهٔ لابی/استخر.
- پرسش دربارهٔ قراردادهای فعلی (نگهداری، تامین انرژی، پیمانکاران) و گرفتن نمونهٔ صورتحساب شارژ سه ماهه.
- بررسی نزدیکترین مراکز درمانی، مدارس و دسترسی به اتوبان (حکیم، همت، خرازی).
۱۲ — پیشنهادات عملی برای نوشتهٔ صفحهٔ سایت شما (SEO و جلوگیری از تکرار)
- اضافه کردن محتوای اختصاصی: مصاحبهٔ کوتاه با سازنده یا عکس/ویدئو اختصاصی از واحد نمونه و لابی؛ این موارد یونیکاند و ارزش سئو دارند.
- FAQ با Schema: سؤالات متداول را با نشانهگذاری FAQ Schema در صفحه قرار دهید تا شانس ظاهر شدن در نتایج Rich Results بیشتر شود.
- جداول مشخصات فنی: یک جدول مشخصات با فیلدهایی مانند: متراژ دقیق، تعداد طبقات، سال شروع/تحویل، تعداد آسانسور، ظرفیت پارکینگ و نوع اسکلت—این جداول برای کاربران و گوگل مفیدند.
- مقایسهٔ مستقیم: یک جدول مقایسهٔ آترا با ۲–۳ برج همسایه (قیمت متوسط، امکانات، سال ساخت) بنویسید — این محتوای تحلیلی بسیار یونیک و مفید است.
- مرجعدهی و canonical: اگر بخشی از اطلاعات را از بروشور یا آگهی برداشتید، یا صفحهای منبع دارید، از تگ canonical یا ارجاع صریح استفاده کنید تا محتوای شما بهعنوان نسخهٔ اصلی شناخته نشود یا از پنالتی کپی جلوگیری شود.
۱۳ — پرسشهای متداول (FAQ) — نسخهٔ کامل برای قرارگیری در صفحه (قابل کپی/قرار دادن در Schema)
Q1: برج آترا چند طبقه و چند واحد دارد؟ A: برج آترا بهصورت تکبلوک ۱۷ طبقه (۳ طبقه پارکینگ، ۱ طبقه لابی، ۱۳ طبقه مسکونی) ساخته شده و مجموعاً ۸۷ واحد دارد.
Q2: متراژ واحدها چه محدودهای دارند؟ A: متراژها از ۸۷ تا ۱۴۵ متر (تیپهای ۸۷، ۹۷، ۱۰۷، ۱۲۲، ۱۳۵، ۱۴۵) هستند.
Q3: آیا برج سند دارد و وضعیت تحویل چگونه است؟ A: منابع آگهی گزارش دادهاند که برج نوساز است و برخی واحدها تحویل شده یا در مراحل نهایی تحویلاند؛ برای وضعیت سند واحد خاص باید استعلام رسمی از دفتر اسناد یا دفتر فروش گرفته شود.
Q4: آیا سیستم گرمایش/سرمایش مرکزی دارد؟ A: معرفیها به وجود سیستم مرکزی اشاره کردهاند؛ اما مشخصات دقیق (برند چیلر، ظرفیت، توزیع انرژی) باید از دفتر فنی یا دفتر مدیریت ساختمان استعلام شود.
Q5: میانگین هزینهٔ شارژ ماهانه چقدر است؟ A: هزینهٔ شارژ به سیاست مدیریت، هزینهٔ انرژی و سطح استفاده از امکانات بستگی دارد؛ نمونههای مشابه برجهای هتلینگمانند در منطقه شارژ بالاتری دارند. حتماً قبل از خرید قرارداد شارژ و صورتحسابهای قبلی را بخواهید. (محاسبات نمونه در بخش ۹ بالا ارائه شدهاند).
Q6: دسترسی به مترو و بزرگراه چگونه است؟ A: دسترسی به بزرگراههای مهم (همت، حکیم، خرازی) مناسب اعلام شده اما مترو در محدودهٔ کوهک/دریاچه بهطور کامل توسعهنیافته است؛ بنابراین تا حدی وابستگی به خودرو وجود دارد.
Q7: آیا برای سرمایهگذاری مناسب است؟ A: اگر دید سرمایهگذاری بلندمدت دارید و تحمل شارژ و هزینههای نگهداری بالاتر را میپذیرید، منطقهٔ ۲۲ و پروژههایی مانند آترا پتانسیل افزایش ارزش دارند؛ اما برای نقدشوندگی کوتاهمدت، بررسی دقیق بازار اجاره و تقاضا ضروری است.
**Q8: آیا نما و مصالح نگهداری پرهزینهای دارند؟**nA: نمای سنگی و جزئیات نئوکلاسیک معمولاً هزینهٔ تمیزکاری و نگهداری بالاتری دارند؛ پیشبینی بودجهٔ نگهداری نما را فراموش نکنید.
Q9: آیا در مورد مدیریت ساختمان اطلاعاتی وجود دارد؟ A: آگهیها اشاره به وجود مدیریت و نگهبانی ۲۴ ساعته دارند؛ اما کیفیت واقعی مدیریت و پیمانکاران را از ساکنان فعلی یا دفتر مدیریت بررسی کنید.
Q10: چه مستنداتی پیش از قرارداد خرید باید چک شود؟ A: سند مالکیت، پایانکار، گواهیهای آتشنشانی، قرارداد مدیریت، صورتحسابهای شارژ و سابقهٔ تحویل سازنده.

























